Войти   Регистрация

Придомовой паркинг в Левобережном сделали платным

«Отрезали» часть земли, поставили шлагбаум

Согласно проектам межевания, парковка входит в территорию жилых домов

После публикации «Стройка без ограждения и слив пены в реку: жители Левобережного недовольны местными застройщиками» в редакцию «Тульской прессы» обратились жители Левобережного. По их словам на придомовой территории организовали бизнес: «отрезали» часть земли, поставили шлагбаум и устроили платный паркинг.

«В соответствии с генпланом и проектом планировки всего Левобережного, утверждённого на заседании Думы и прошедшего публичные слушания, огороженная территория парковки с разворотом и остановкой маршруток, и территорией мойки является территорией паркинга всего Левобережного и не должна никому принадлежать. Этим и объясняется плотность самой застройки, так как без этой парковки не выдали бы разрешение на строительство микрорайона в целом! Парковка раскатана на количество квадратных метров жилья с учетом внутридворовых парковок, которых недостаточно!», — рассказал читатель «Тульской прессы».

Однако в данный момент изначальные планы расходятся с реальностью. Открытая парковка была огорожена забором, на въезде установлен шлагбаум, который открывается электронным ключом. Оставить свою машину под охраной на некогда открытой стоянке сейчас можно за 1500 рублей в месяц. Прибавьте к этому залог за последний месяц, а также ключ стоимостью 250 рублей. Таким образом, в первый месяц вам придется опустошить свой кошелек на 3250 рублей, а затем каждый месяц отдавать еще 1500 тысячи.

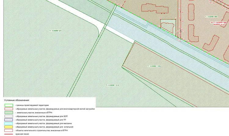
Исходя из постановления городской Думы «О назначении публичных слушаний по обсуждению проекта внесения изменений в проект межевания территории «Жилая застройка по Восточному обводу в Ленинском районе Тульской области», территория парковки является земельным участков, формируемым для многоквартирной жилой застройки.

Территория парковки выделена красным цветом (в нижнем правом углу карты). Согласно условным обозначениям это значит, что данная территория принадлежит к земельным участкам, формируемым для многоэтажной жилой застройки

Соответственно, данная территория является придомовой и принадлежит жителям Левобережного. Ее коммерческое использование возможно только при согласии жильцов. Так почему туляки вынуждены платить за парковку, которая и так принадлежит им? Просим считать эту публикацию открытым обращением в прокуратуру.

Напомним, жители Левобережного страдают еще от одной проблемы: в непосредственной близости от домов идет строительство автомойки. По словам туляков, застройщик не соблюдает требование о санитарно-защитной зоне. Жители самостоятельно измерили расстояние между стройкой и ближайшим жилым домом. Оно составило 64 метра, когда по нормативам должно быть не меньше 100 метров.

Владелец мойки не заставил себя ждать и сам прибыл на место (корреспондент «Тульской прессы» присутствовал на встрече с жителями, — прим. ред.). Директор компании «Маджестик финанс групп» Сергей Сафронов отметил, что застройщик готов заплатить штраф за выявленные нарушения и добавил, что требования санитарно-защитной зоны на мойку не распространяются, так как она не является капитальным строением. Хотя по данным кадастровой карты этот участок можно использовать и как автостоянку.

Отметим, что читатели «Тульской прессы», которые принимали участие во встрече сообщили, что Сафронов не скрывал своего знакомства с застройщиком ЖК «Левобережный» — директором девелоперской компании «Ин-Групп» Александром Велигодским.

Как сообщает читатель «Тульской прессы», часть придомовой территории, на которой находится паркинг, также используют для разворотного кольца маршруток.

Анна Серегина, «Тульская пресса»

10878620cookie-checkПридомовой паркинг в Левобережном сделали платным
 

Комментарии

  1. Аватаржителям

    Сережа-чиста конкретный пацан. Правильный. Вам чо, жалко бабосиков ему отстегнуть в натуре?

  2. АватарДед

    Купив домик с участком,был уверен,что он мой.Ан,нет!У него оказалось много хозяев,которым должен оплачивать ежемесячную,два раза в год увеличивающуюся мзду.Как перестану платить-домик уже не мой.Так что,господа-товарищи,жители Левобережного,у вас своего ничего нет.Оно ихнее!

  3. АватарЖилец

    В чем расстройство? В том, что кто то умеет организовать бизнес, кто то нет? Мойка — это бизнес, но это и благо для всех нас рядом проживающих. Если есть возможность помыть свою машину и поставить на охраняемую парковку не далеко от дома — это хорошо.

  4. АватарКоммерсант

    Интересно кто и что хочет?
    Купили четыре стены в человейнике и что?
    Вот эти четыре стены и есть ваша собственность, а всё остальное извините…….

  5. АватарПрораб

    Чудны крестьянские дети.Влезают в долговые ямы и думают,что всё теперь для них.Нет.Левобережный не для вас,а вы для него.Доить не передоить.

  6. АватарПотомки

    А где написано что парковка должна быть бесплатной? Это вы расскажите людям, которые покупают подземные паркинги. Купил машину? Купил и стоянку/гараж/парковку.

    1. Аватар190821

      А, где написано, что ты бесплатно должен ходит пешком? Прецедентетик уже есть. Купил квартиру-оплати поход за хлебом!!!!!! Вот ссылочка. -Барнаулец выкупил кусок земли у многоэтажки и теперь требует от жильцов деньги за проход по участку- ПЕРЕМЕНЫ К ЛУЧШЕМУ!!!!!!!!!!!!!!!!!!!

Добавить комментарий